Denah rumah 2 lantai Minimalis
Sunday, September 16, 2012
0
comments
Denah rumah 2 lantai Minimalis Terbaru
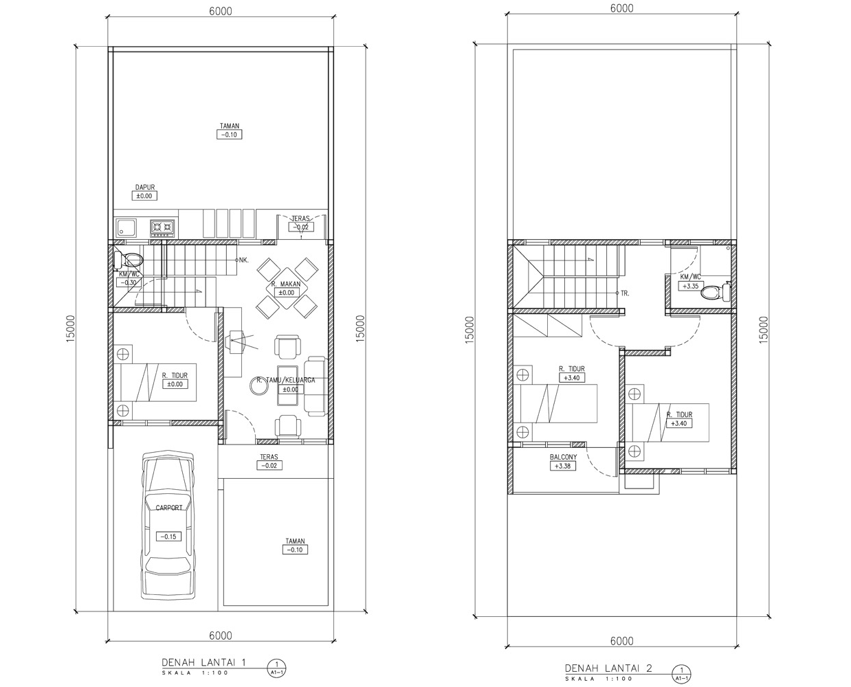
Rumah minimalis menjadi salah satu opsi yang paling banyak di pilih oleh masyarakat perkotaan dan juga para kawula muda modern. Untuk pengembangan terhadap lahan yang terbatas, denah rumah 2 lantai yang tepat dapat menjadi pilihan terbaik untuk Anda.Sebagai contoh untuk rumah dengan tipe 36 dengan luas tanah 90m2 ( ukuran 6 x 15), denah rumah 2 lantai yang bisa di kembangkan bisa berbagai bentuk dan tipe. Berikut salah satu contoh denah rumah 2 lantai yang bisa anda jadikan referensi untuk mewujudkan rumah idaman Anda yang asri.
Tampak denah rumah 2 lantai modern
Desain Rumah Terbaru:
TERIMA KASIH ATAS KUNJUNGAN SAUDARA
Judul: Denah rumah 2 lantai Minimalis
Ditulis oleh Unknown
Rating Blog 5 dari 5
Semoga artikel ini bermanfaat bagi saudara. Jika ingin mengutip, baik itu sebagian atau keseluruhan dari isi artikel ini harap menyertakan link dofollow ke https://desainnrumah.blogspot.com/2012/09/denah-rumah-2-lantai-minimalis.html. Terima kasih sudah singgah membaca artikel ini.Ditulis oleh Unknown
Rating Blog 5 dari 5


0 comments:
Post a Comment